Bizet

Thématiques
Reference
418BZT
Lieu

1070 Anderlecht
Belgique

Client
Commune d’Anderlecht
Phase
Description
ÉLABORATION D’UN MASTERPLAN EN VUE DU RÉAMÉNAGEMENT DÉFINITIF DU PARKING BIZET, CONCEPTION ET AIDE À LA MAÎTRISE D’OUVRAGE D’UN ÉQUIPE- MENT MIXTE ET DE L’ESPACE PUBLIC DE LIAISON, CHAUSSÉE DE MONS, 975-983 À 1070 ANDERLECHT, DANS LE CADRE DU CONTRAT DE QUARTIER DURABLE BIZET
Blocks

Le projet repose sur une lecture historique et spatiale du site autour de la place Bizet et de la chaussée de Mons. Deux échelles urbaines s’y distinguent : le petit grain, formé par le bâti ancien à parcelles étroites typiques de la maison bruxelloise, et le grand grain, constitué d’immeubles récents de plus grande taille implantés librement. La gradation du bâti, liée à la topographie et au passage du métro, crée de nouvelles perspectives et des liaisons douces vers un futur jardin. Deux axes visuels structurent le site : depuis la rue de la Promenade, révélant la mixité fonctionnelle des îlots, et depuis la chaussée de Mons, marquant la transition d’échelle et la présence végétale en fond de parcelle. Le Masterplan propose une continuité entre bâti et paysage à travers deux ensembles : le Bloc A, regroupant logements et crèche, et le Bloc B, réunissant les maisons d’Accueil, Sociale et de Quartier. Ces volumes accompagnent la gradation des gabarits et ouvrent le site vers le parc intérieur. 

Layout
Half
to the right
0
Text

Masterplan 

Layout
Half
to the right
1

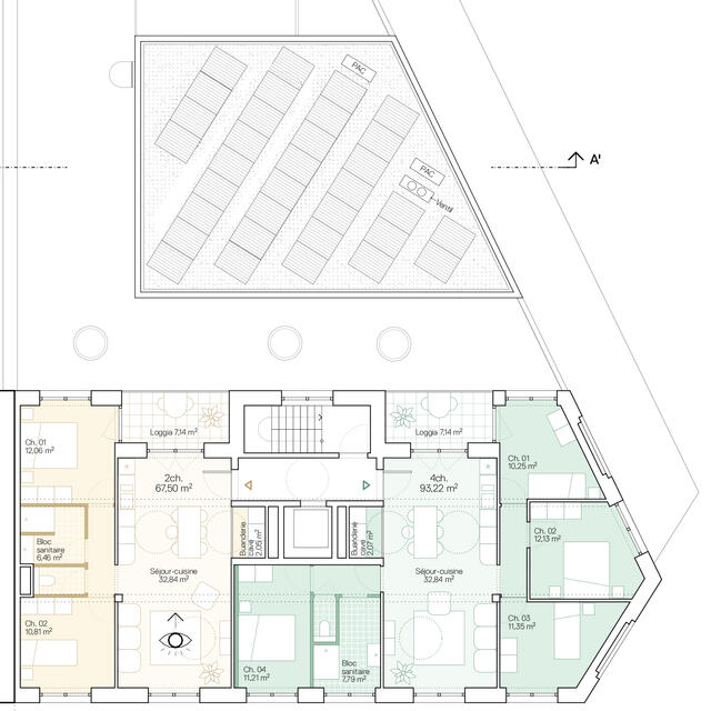
Le masterplan organise bâti et paysage de façon claire et cohérente. Le Bloc A, le long de la chaussée de Mons, regroupe des logements à double orientation autour d’un noyau central et intègre la logistique de la crèche au rez-de-chaussée. La crèche se déploie côté parc avec un petit jardin, formant un pavillon ouvert sur le parvis planté. Les aménagements paysagers créent une transition fluide entre espace urbain et nature : une canopée filtre la rue, le parvis relie les équipements de quartier, et des grilles assurent la sécurité nocturne du parc. L’ensemble assure une continuité paysagère reliant la place Bizet au cœur vert de l’îlot, conciliant habitat, nature et vie de quartier.

Layout
Half
to the right
1
Text

Le Parc Bizet

 

Layout
1 column
to the right
0

Transformer un parking en espace naturel 

 

Le projet s’inscrit dans la continuité des actions du CQD Bizet et vise à créer un espace durable et co-construit avec les habitant.es et associations locales. Il propose une gradation des ambiances, depuis les zones urbaines proches de la place Bizet jusqu’aux espaces naturels et récréatifs vers la rue Félicien Rops.

L’objectif principal est de restituer au quartier un espace naturel de proximité favorisant les liens sociaux et la biodiversité. Une canopée végétale accompagne les parcours, reliant la ville au parc et définissant une succession de clairières et de prairies fleuries, offrant diversité d’ambiances et flexibilité d’usages. Enfin, la conception du sol, anciennement asphalté, s’appuie sur un principe de réemploi et de soustraction : conserver les surfaces utiles tout en favorisant l’infiltration des eaux et la revégétalisation. Ce travail abolit la séparation entre espace vert et espace urbain, créant un lieu vivant, résilient et accessible à tous.

Layout
Half
to the right
0
Text

Bloc B - Trois maisons et un auvent

Layout
Half
to the right
0

Implanté en bout d’îlot rue de la Promenade, l’équipement de quartier Bizet relie la ville au parc, formant une interface entre espace urbain et paysager. Il se compose de trois maisons (A, S et Q) unifiées par un auvent en acier, qui abrite, relie et identifie l’ensemble tout en modulant lumière, ombre et intimité. Le projet s’appuie sur la topographie naturelle du site pour garantir une accessibilité fluide et une progression des usages : du plus urbain (Maison A – services du CPAS) au plus ouvert sur le parc (Maison Q – ateliers et activités).

L’articulation volumétrique et la trame constructive en CLT assurent cohérence, économie et flexibilité des espaces. La matérialité — brique, bois, métal recyclé, terre crue — exprime la robustesse et la durabilité, tout en intégrant une démarche circulaire et biosourcée.

Layout
Half
to the right
0

Maison A 

La maison d’accueil s’intègre discrètement dans le quartier, avec une façade en briques de réemploi inspirée des immeubles voisins. L’entrée, sobre et accueillante, assure un sentiment de sécurité et de calme, tandis que les espaces communs et les circulations profitent d’une lumière naturelle et de vues sur le parc. Les logements traversants bénéficient d’un ensoleillement tout au long de la journée ; le bois apparent et les murs clairs créent une atmosphère chaleureuse et lumineuse. 

Le projet  vise à favoriser le « prendre soin » de soi et des lieux, en valorisant les espaces domestiques souvent invisibilisés, et en soutenant la vie familiale des résidentes. Il combine des équipements privatifs et des espaces partagés (mini-buanderies, salles de bain lumineuses, toiture avec potager) pour encourager entraide, liberté retrouvée et temps partagé avec les enfants.

Layout
Half
to the right
0
2 columns
Original
Image
Plan du R+2
Image
Illustration depuis l'intérieur d'un logement

Maison S 

Le CPAS, au rez-de-chaussée de la Maison A, offre un accueil discret et apaisant avec bureaux protégés par des brise-vues et une circulation interne vers la salle de sport. Celle-ci, modulable et pensée pour le bien-être des personnes âgées ou en rééducation, utilise des matériaux biosourcés, un sol chauffant en linoléum et des murs en terre crue, alliant confort, acoustique et régulation hygrométrique, tout en s’intégrant harmonieusement au paysage et aux bâtiments voisins.

Layout
Half
to the right
0
2 columns
Original
Image
Plan halle sportive
Image
Illustration depuis la halle sportive

Maison Q 

La Maison Q, intégrée au programme du Bloc B, se distingue par sa forme simple à deux versants et son implantation dans le parc, créant un lieu convivial et fédérateur.Le rez-de-chaussée abrite un atelier polyvalent accueillant diverses activités (Café-Vélo, Repair Café, ateliers) dans un espace modulable et robuste, réalisé en matériaux bruts et biosourcés, avec un sol en “recuperrazzo” issu du réemploi. À l’étage, deux espaces majeurs dominent : une cuisine collective ouverte sur une terrasse et un potager, et un local de réunion lumineux sous toiture. L’ensemble, accessible à tous et techniquement autonome, illustre une démarche durable et pédagogique. 

Layout
Half
to the right
0
2 columns
Original
Image
Plan maison de quartier
Image
Illustration depuis l'intérieur de la maison de quartier
Team
Cambium
Plant & Houtgoed
Enesta
ASM
Copeb
Date de début
2025
Page détail activée
0