408BRI

Programme
Reference
408BRI
Lieu

1000 Bruxelles
Belgique

Cover
Image
Image de la façade
Client
Beliris
Date de fin
2023
Surface
2500 m²
Phase
Budget
21 930 000 €
Description
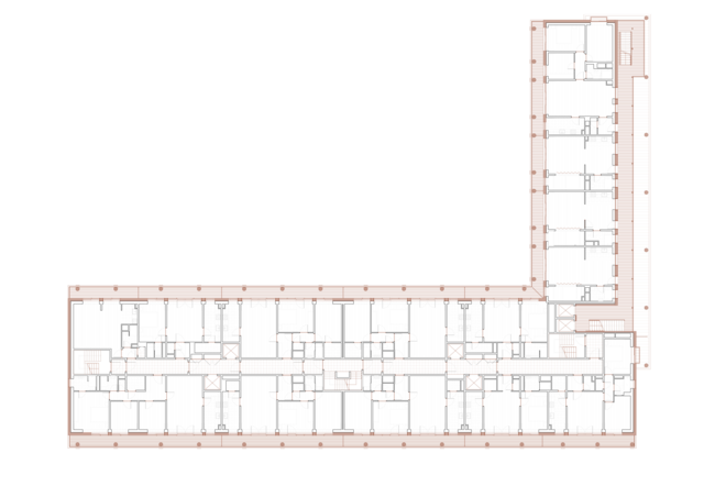
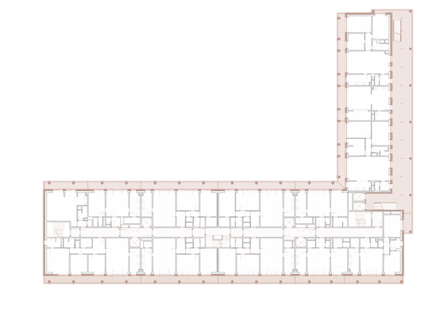
Rénovation de l’enveloppe extérieure, mise en conformité incendie et rénovation des composants architecturaux et techniques intérieurs de l’immeuble de logements sociaux sis 1 Petite rue des Brigittines et 1-3 rue des Visitandines à 1000 Bruxelles
Blocks
1 column
Original
Image
Image de la façade
Text

Rénovation de l'immeuble de logements sociaux Brigittines

Layout
1 column
to the right
0

Le présent projet interprète le bâtiment comme le résultat de la poursuite de deux grands objectifs, que la proposition veut entretenir et amplifier.

La première dimension est celle de l’espace de la Jonction Nord-Midi, que le milieu du XXe siècle avait imaginé comme un boulevard national et que l’usage imposé de la pierre de France en façade devait formaliser. Le double immeuble Brigittines/Visitandines peut être considéré, par sa position et ses dimensions, comme l’élément de clôture méridional de cet espace si particulier, avec la grille brutaliste de la façade Nord. Le béton de la reconstruction des coursives renvoie à la pierre dominante sur le boulevard de la Jonction, tandis que le travail du béton en double hauteur permet de travailler la privacité des logements par rapport à l’espace de déambulation. Cela permet d’ouvrir de véritables baies, et offrir, pour la première fois, une façade animée sur l’espace de la Jonction. 

La seconde dimension que veut renforcer l’intervention est celle, fondamentalement lié à la pensée moderniste, d’une approche radicale où la technique et l’esthétique se nourrissent directement et mutuellement. La reconfiguration des coursives offre l’opportunité de développer de véritables logements traversant Nord/Sud tandis que les logements mono-orientés profitent de larges espaces extérieurs grâce à l’adjonction d’une structure rapportée. Cette structure se veut un geste techniquement unique et synthétique. Elle permet d’enfin asseoir le bâtiment dans les espaces publics qui l’entourent en dessinant une plinthe activée. Elle répond à la problématique des nuisances sonores du bon millier de trains qui passent quotidiennement et permet, par la réutilisation des anciennes loggias, de conduire le chantier et travailler sur les techniques du bâtiment sans intrusion dans la vie des habitants. 
Enfin, le dessin des dalles des terrasses reproduit le soin minutieux que Gaston Brunfaut et Charles Van Nuetem apportent à la modulation des façades et des plans et au choix d’une palette très limitée de matériaux dont le béton lavé.

Medias
Image
Croquis conceptuel
Image à droite
Linked article
Top Align
middle
4 columns
1/1
Image
photo d'archive
Image
photo d'archive
Image
photo d'archive
Image
photo d'archive
2 columns
Original
Image
Image de la façade
Image
Image de la façade
1 column
Original
Image
Image de la façade
2 columns
Original
Image
Croquis d'un logement
Image
Croquis des coursives
2 columns
Original
Image
Axonometrie de la structure
Image
Axonometrie de la structure
Team
360 Architecten, BESP, MK engineering,
Date de début
2023
Page détail activée
1